QC型電磁橋式起重機


特點: Qc型5-15噸電磁橋式起重機帶有可裝卸的電磁盤,特別適用于冶金工廠在室內或露天的固定跨度間較繁重的裝卸及搬運具有磁性的黑色金屬制品與材料。在機械廠、庫房也常用來搬運鋼料、鐵屑等物料。
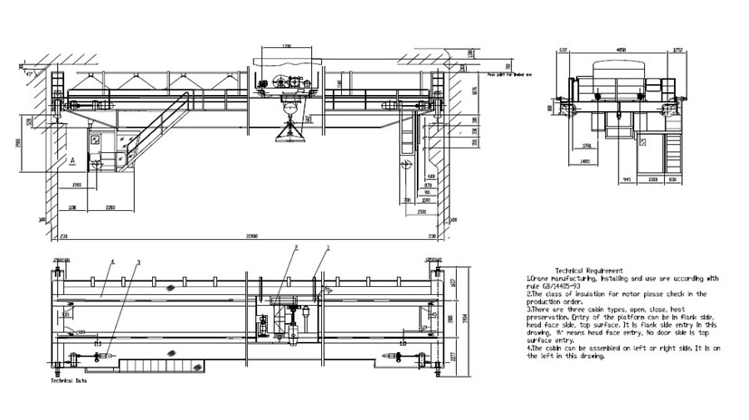
本機本機由箱型橋架、大車運行機構、小車、抓斗、電氣設備五部分組成,全部機構均在操縱室內操縱。當露用需帶防雨設備。
| 名稱 Title | 單位 Unit | 大規格 Specs |
| 額定起重量 Load: | Gn | 5T,10T,16T,20T,32T,50T,80T,100T,125T. |
| 跨度 Span: | S | 7.5m-30m. |
| 提升高度 Lifting Height: | H | 6m-30m. |
| 工作電源 Power source | 3p A.C 50HZ 380V | |
| 工作級別 Class: | jc | A5,A6,A7,A8 |
QC型電磁橋式起重機 2015-12-14 本文被閱讀 5728 次



魯公網安備 37098202000518號